Heavy-Duty Signal Trimming with Built-In Surge Protection
Built for the most demanding outdoor environments, the JB8SPT TuffSeal® junction box offers advanced signal trimming and surge protection for truck, livestock, and railroad scale systems. It features a durable NEMA Type 4X-rated enclosure, removable connectors for easy field maintenance, and a conformal coated circuit board to prevent moisture and debris damage.
Designed for even-numbered load cell configurations (2, 4, 6, or 8 cells), this rugged junction box provides both individual and section trimming. Integrated transient protection safeguards your load cell system against unexpected power surges, while the PreVent™ breather vent equalizes internal pressure to avoid condensation buildup.
Key Features
-
Transient Surge Protection
Built-in board protects internal electronics from damaging voltage spikes. -
PreVent™ Breather Vent
Minimizes internal condensation, ideal for outdoor applications. -
Individual and Section Trimming
Fine-tune load cell output easily with precision potentiometers. -
Removable Connectors
Pluggable screw-type terminals make installation and replacement quick and clean. -
Expansion-Ready Design
Features an integrated expansion port for system growth or integration.
Applications
-
Truck Scales
-
Livestock Scales
-
Railroad Track Scales
JB8SPT Specifications
| Feature | Details |
|---|---|
| Cable Fittings | (9) 3/8 in NPT (0.157–0.314 in); (2) 1/2 in NPT (0.272–0.472 in) |
| Material/Rating | NEMA Type 4X |
| Connectors | Pluggable screw type, 12–28 AWG |
| Trimming Capability | Individual cell and section trimming |
| Potentiometers | 100,000 ohm, 25-turn cermet |
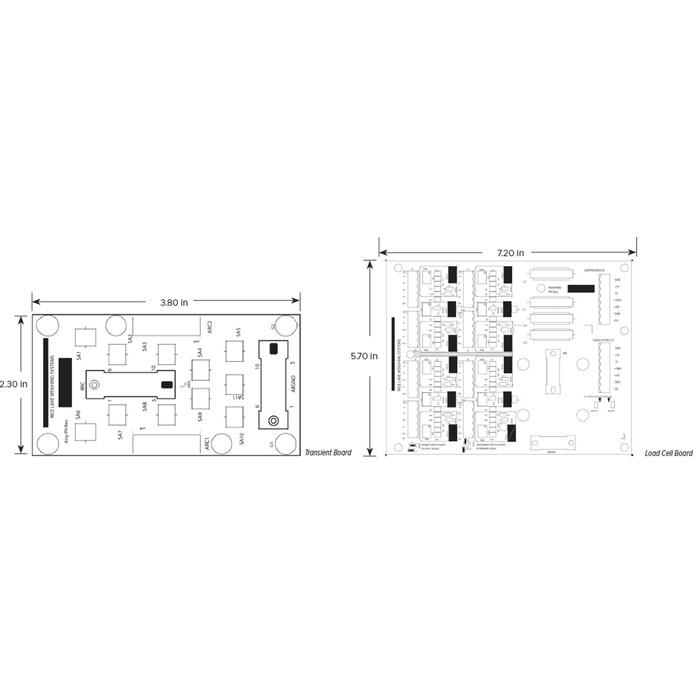
| Circuit Board | 5.7 × 7.2 in, conformal coated |
| Temperature | 0 °F to 122 °F (–18 °C to 50 °C) |
| Expansion Port | Yes |
| Warranty | One-year limited |
| Model | Complete J-Box Replacement | Replacement Board Only | Replacement Cord Grips | Replacement Pressure & Condensation Vent | Desiccant Packs |
|---|---|---|---|---|---|
| JB4SS | 88956 | 88958 | 58983=PG7, 59001=PG11 | 88733 PreVent™ breather (vent), 88734 (vent nut) | 92240 |
| JB4ES | 91779 | 89446 | 58983=PG7, 59001=PG11 | 88733 PreVent™ breather (vent), 88734 (vent nut) | 92240 |
| JB4SP / JB4SPT | 91780 / 92762 | 88958 / 89894 | 58983=PG7, 59001=PG11 | 88733 PreVent™ breather (vent), 88734 (vent nut) | 16039 |
| JB4EP / JB4EPT | 91781 / 92763 | 89446 / 89894 | 58983=PG7, 59001=PG11 | 88733 PreVent™ breather (vent), 88734 (vent nut) | 16039 |
| EL204 | 73428 | 88958 | N/A | N/A | N/A |
| JB8SP | 91782, 173807 - FM Approved | 89889, 172415 - FM Approved | 15655 (cord grip), 15656 (nut)=3/8" NPT, 15628 (cord grip), 15630 (nut)=1/2" SPT | 88733 PreVent™ breather (vent), 88734 (vent nut) | 16039 |
| JB8SPT | 91783 | 89889 (load cell), 89894 (transient protection) | 15655 (cord grip), 15656 (nut)=3/8" NPT, 15628 (cord grip), 15630 (nut)=1/2" SPT | 88733 PreVent™ breather (vent), 88734 (vent nut) | 16039 |
| EL304A | 21169 | 21301 | N/A | N/A | N/A |
| JB1010 | 36231 | 36351 | N/A | N/A | N/A |
| JB1010ST | 68813 | 68811 | N/A | N/A | N/A |
| EL210 | 91781, JB4EP* | 92472 | 58983=PG7, 59001=PG11 | N/A | N/A |
| EL211A | 91780, JB4SP* | 92473 (no section trim) | 58983=PG7, 59001=PG11 | N/A | N/A |
| EL604-AL | 88956, JB4SS* | 88958 | 58983=PG7, 59001=PG11 | N/A | N/A |
| EL604STA | 88956, JB4SS* | 88958 | 58983=PG7, 59001=PG11 | N/A | N/A |
| EL604ETA | 91779, JB4ES* | 89446 | 58983=PG7, 59001=PG11 | N/A | N/A |
| EL504 | 21165 | 21296 | N/A | N/A | N/A |
| JB808S | 91782, JB8SP* | 92471 | 15655 (cord grip), 15656 (nut)=3/8" NPT, 15628 (cord grip), 15630 (nut)=1/2" SPT | N/A | N/A |
| JB818ST | 91783, JB8SPT* | 77445, 89889, 89894 | 15655 (cord grip), 15656 (nut)=3/8" NPT, 15628 (cord grip), 15630 (nut)=1/2" SPT | N/A | N/A |
Free Shipping: Available across 48 continental USA. Extra charges may apply for residential, farm, or rural areas.
Express Shipping: Overnight and faster shipping options available at additional costs. Quotes obtainable via email.
Delivery Time: Typically 5 to 7 business days, varying by location and external conditions.
Tracking Information: Provided via email upon shipment. Accessible through account login. Additional information available upon request.
Return Policy: 15-day return period for unused, original condition products. A 25% restocking fee applies. Buyer covers original and return shipping costs.
Customer Support: Contact at (844)-735-5386 or info@selletonscales.com for queries or concerns about shipping.